Skip to content

DB-Güterbahnhofareal

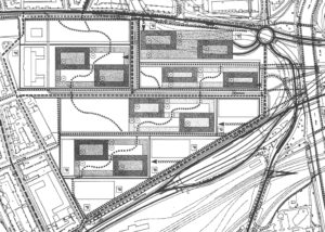
Die Umgebung des DB-Areals ist durch verschiedene Quartiere mit ihren spezifischen Funktionen und deren Strukturen charakterisiert. Diese sollen in den neu geplanten Ort einfliessen. Er soll nicht als ein in seiner Funktion isolierter Bereich angesehen werden. Der neue Stadtteil ist eine Mischung aus Wohn- und Geschäftsquartier, durchbrochen von öffentlichen Nutzungen wie Einkaufsachsen, Sport- und Vergnügungsstätten etc. Die vorhandenen Strukturen (reale und abstrakte) sind der Veränderung unterworfen und stehen gleichzeitig in vielseitigen Wechselwirkungen zueinander. Um zukünftigen Anforderungen urbaner Bereiche zu genügen, müssen sie eine möglichst hohe Flexibilität und Kombinierbarkeit erreichen, sollen aber gleichzeitig nicht aus einer übergreifenden Ordnung herausgelöst weren können.

Ort

Basel

Jahr

1996

Rang

6. Rang