Skip to content

Kantonsschule Büelrain

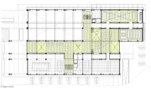
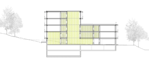
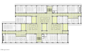
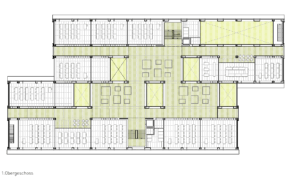
Das Stadtbild von Winterthur ist gleichermassen geprägt vom historischen Stadtkern wie auch von grossmassstäblichen Industriebauten. Das neue Schulgebäude reagiert volumetrisch auf den baulichen Massstab der näheren Umgebung (Wohnsiedlung, Nachbarvilla) und führt den von den Architekten Amsler eingeführten, architektonischen Ansatz zeitgenössisch weiter, u.a. durch die Volumenverschiebung und die Feingliedrigkeit. Mit seinem kubisch gestaffelten Baukörper nimmt das Gebäude die Volumetrie der Industriebauten wie z.B. auf dem Sulzerareal auf.

Ort

Winterthur

Jahr

2009

Auftragsart

Wettbewerb, offen

Auftraggebende

Kanton Zürich