Skip to content

Primarschulhaus Herti

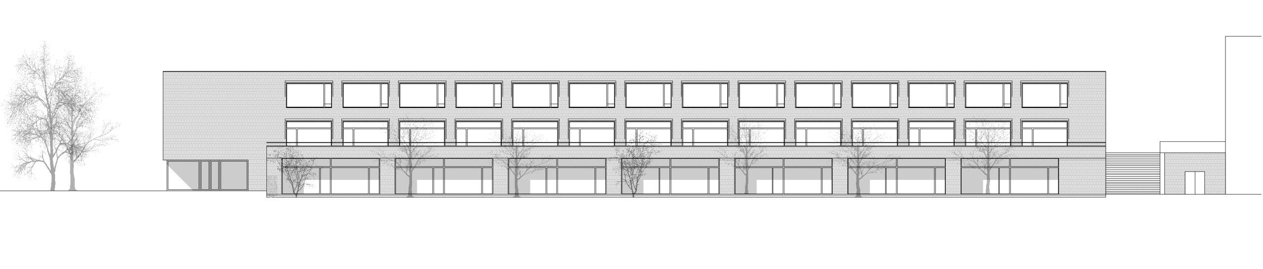
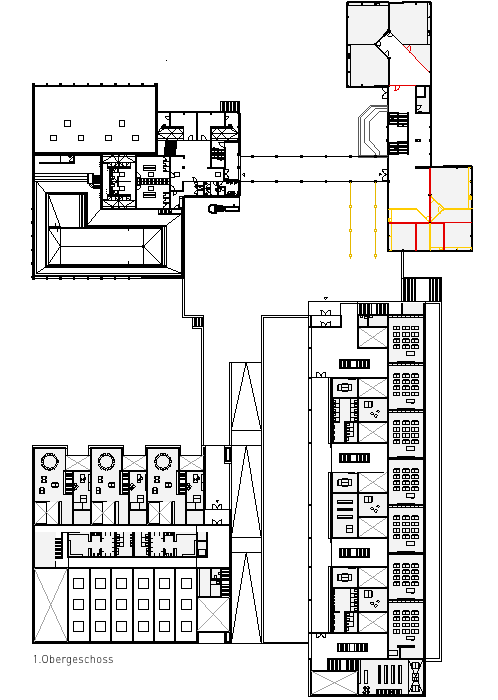
Die Schulanlage Herti ist ein Gebäudeensemble aus Primarschulhaus, Mehrzweckgebäude sowie Schwimm- und Sporthalle. Die drei Gebäude sind in eine künstliche Hügellandschaft eingebettet, von deren erhöhter Mitte, dem zentralen Pausenplatz, alle Gebäude erschlossen werden. Die Anlage liegt ohne erkennbare Bezüge zu ihrer Umgebung, zwischen der weiträumigen Wohnbebauung des Quartiers Herti auf der Ost- und Südseite, der industriell geprägten Gebäudegruppe der Gewürzmühle im Westen und dem Grünraum der Lorzeebene und der Landwirtschaftszone im Norden. Das eigentliche Nutzungspotential der Anlage sehen wir im Süden des Areals. Wie schon in unserem Wettbewerbsbeitrag für ein Oberstufenschulhaus schlagen wir hier eine Verdichtung und damit einhergehende bessere Anbindung der Schulanlage ans Quartier vor. Das nördliche an die Landwirtschaftszone angrenzende Schulareal bleibt damit frei von Bauten und bietet Platz für die Erweiterung der Sportanlagen mit einem Rasenspielfeld. Der noch intakte, und den Ort prägende Erholungsraum der Lorzeebene wird dadurch weiter gestärkt. Die unterschiedlichen Nutzungen werden in zwei Neubauten zusammengefasst, die mit ihrer Volumetrie auf die vorhandenen Strukturen in der Nachbarschaft reagieren. Die niedrigen Baukörper sind gleichzeitig als Erweiterung der campusartigen Schulanlage lesbar.

Ort

Zug

Jahr

2012