Skip to content

Wirtschaftsschule

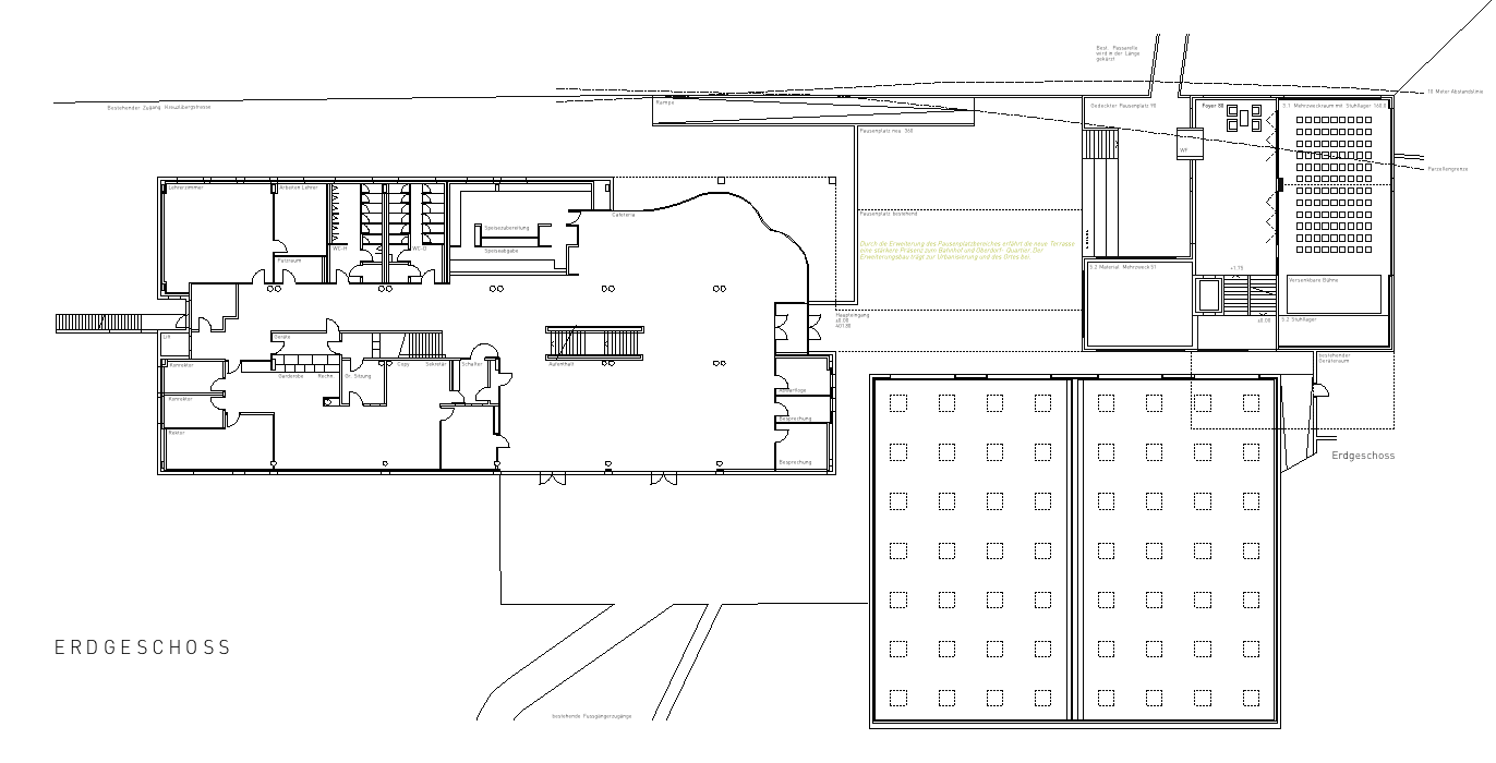
Der Neubau versucht die funktionalen Nachteile des bestehenden Schulhauses (umständliche Erschliessung des Sportbereiches, ungenügende Aktivierung des Pausenplatzes)
zu korrigieren. Durch die Platzierung des Mehrzweckraumes auf dem Niveau der Fussgänger- passarelle wird der Pausenbereich belebt und über das vorgelagerte Foyer erhält der Sportbereich einen leicht auffindbaren zentralen Zugang. Der Neubau wird sowohl über das Untergeschoss als auch über das Erd- und 1. Obergeschoss mit dem bestehen- den Altbau verbunden. Dies geschieht über eine einzige Treppenanlage mit Lift , die zentral den Kern des Entwurfs bildet. Darum herum sind die zweiseitig belichteten Klassen-
zimmer und die Nebenräume  so angeordnet, dass eine maximale Flexibilität erreicht werden kann, die sogar soweit geht, dass neben den verlangten Räumen zwei zusätzliche Schulzimmer realisiert werden könnten. Der Weg zwischen den Geschossen einerseits und den beiden Baukörpern andererseits wird so zur ‚promenade architecturale‘.

Ort

Baden

Jahr

2001

Rang

3. Rang