Skip to content

Zollhaus

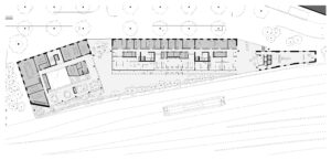
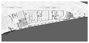
Mit dem Zollhaus wird ein inklusives Stück Stadt verwirklicht: eine Überbauung mit günstigen Wohnungen, welche sich für die diversesten Wohnformen eignen, sowie einem bunten, kleinteiligen Mix an Gewerberäumen. Als Dreh- und Angelpunkt verbindet das dreigeschossige Forum die verschiedenen Nutzungen. Für eine nachhaltige Gesellschaftsentwicklung wird eine suffiziente Flächennutzung angestrebt. Neben der Beschränkung privater Flächen werden gemeinschaftlich genutzte Räume und ausdifferenzierte Begegnungsorte geschaffen – für das Quartier, für die im Haus Arbeitstätigen und für die Bewohnerschaft.

Das Abdrehen des ersten Hauses an der Langstrasse, erzeugt zwei dreieckige Vorplätze, die den unwirtlichen öffentlichen Raum der Langstrassen-Unterführung aufwerten und den Auftakt zum Forum und der Gleisterrasse bilden. Im Erdgeschoss beleben verschiedenste Geschäfte, Läden und Gastronomie die Zollstrasse. Von einem dritten Platz an der Ackerstrasse gelangt man über eine weitere öffentliche Treppe auf die Gleisterrasse, welche als Promenade zusätzliche Adressen für das Gewerbe sowie die Anbindung zur Langstrasse gewährleistet und so einen hohen Öffentlichkeitsgrad auf dem knappen Grundstück generiert.

Das Zollhaus orientiert sich atmosphärisch an der industriellen Welt der benachbarten Bahngleise. Verzinkter Stahl, roher Sichtbeton, rauen Welleternitplatten prägen das charakteristische Erscheinungsbild des Zollhauses. Ein ungeschminkter architektonischer Ausdruck mit den rohen Materialen versteht sich als neutrale Leinwand, welche sich über die Jahre verändert. Dabei spielen die über 1000 gepflanzten Gehölze, Sträucher, Kräuter, und die Aneignungselemente (Pflanztröge, Maschendrahtzaun, Blumenkisten, Stehbalkone) eine zentrale Rolle für die Veränderung des Ausdruckes über die Jahre.

Das Zollhaus ist ein Biotop für die Pflanzengesellschaften der angrenzenden Gleisfelder. Diese wärmeliebende Flora, oft eingewandert aus dem Süden, findet zwischen den Schotterflächen einen Lebensraum. Es sind Pflanzen, die mit wenig Wasser und Nährstoffen auskommen. Hungerkünstler und Aussenseiter, die ökologische Nischen besiedeln. Dies sind Eigenschaften, die auch auf den Dächern des Zollhauses gefragt sind, denn auch hier sind die Wachstumsbedingungen für die Pflanzen eingeschränkt, die Wasser- Nährstoffversorgung knapp und der Bodenaufbau limitiert. Das gegen Aussen sichtbare, grüne Wahrzeichen des Zollhaus sind allerdings die Maulbeerbäume in den mobilen Wagons auf dem Dach A. Die Bahnschienen und Wagons sind einerseits eine Referenz an die Geschichte des Ortes, andererseits hat das mobile System auch einen praktischen Hintergrund. Je nach Nutzung können die Standorte der Bäume den zukünftigen Anforderungen angepasst werden.

Ort

Zürich

Jahr

2015 – 2021

Auftragsart

Wettbewerb, offen

Rang

1. Rang

Auftraggebende

Genossenschaft Kalkbreite

Team, Wettbewerb

Philipp Fischer (Partner, Projektleitung), Evelyn Enzmann, René Müller (Partner), Isabella Gerster, Julian Sefirow (Partner), Reto Robbi (Partner), Florian Melzer, Johannes Greubel, Jerrit Marx

Team, Planung & Ausführung

Philipp Fischer (Partner, Projektleitung), Oliver Bachmann (Partner, Projektleitung), Delia Burgherr (Projektleitung), René Müller (Partner), Lukas Mähr

Landschaftsarchitektur

Koepfli Partner

Statik

HKP Bauingenieure

Bauleitung

ffbk Architekten

Bauphysik

BAKUS Bauphysik & Akustik

Fassadenplanung

gkp fassadentechnik

Fotografie

Annett Landsmann

Punktwolkenmodell

SCANVISION

Bausumme

53'000'000 CHF

Kubatur

52'300 m³

Auszeichnung

  • Auszeichnung für gute Bauten der Stadt Zürich 2016 – 2020
  • Architekturpreis Kanton Zürich 2022
  • Gestaltungspreis der Wüstenrot Stiftung 2024: Engere Wahl