Skip to content

Schulzentrum Zürich Nord

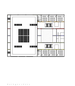
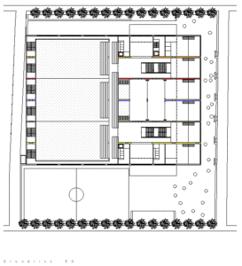
Die ganze Schulanlage ist in einem Gebäudevolumen auf dem Baufeld B5 konzentriert. Das Projekt hält sich eng an die ‚Richtlinien Zentrum Zürich Nord‘, indem die Ecken und Ränder des Baufeldes voll besetzt sind und so der Strassenraum ringsum definiert wird. Der Über- gang vom ‚Örliker-‚ zum ‚Friedrich Traugott Wahlen-Park‘ wird dank der Gebäudehöhe des neuen Schulhauses als kontinuierlicher, urbaner Freiraum gelesen. Die Räume der Primar- und der Ober- stufe sowie ihre jeweiligen Pausen- flächen und Erschliessungen sind räumlich konsequent voneinander getrennt. Die Schüler und Schülerin- nen haben aber im ganzen Gebäude immer wieder visuellen Kontakt. Im mittleren Teil der dreischichtigen Anlage – von beiden ‚Schulen‘ zugänglich – sind die unter Aufsicht gemeinsam genutzten Räume wie Mensa und Forum angeordnet. Indem die Primar- und Oberstufe in einem Gebäude konzentriert sind, werden die sozialen Beziehungen der Kinder und auch der Unter- richtenden gefördert. Unterricht und Erfahrungsaustausch sollen in der modernen Schulpädagogik nicht nur im Klassenzimmer stattfinden.

Ort

Zürich

Jahr

2000